Beautiful/u00a0interior design for a residential project by AREA in Greece.
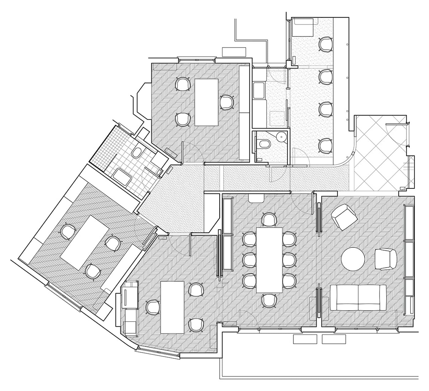
/u201cHomeoffice/u201d is the renovation of a residential apartment in a 1950/u2019s Athenian/u00a0polykatoikia/u00a0and its conversion into a notary office. The main objective was to preserve the original residential typology and to integrate the architectural elements into its new function as a workspace. The original layout is maintained, and minimal changes are limited to the opening up of walls around the reception area, without sacrificing the rooms/u2019 self-sufficiency. The old mosaic, marble and fishbone wood floors, characteristic of the reconstruction era, are preserved and revealed. The boundaries of the old rooms are highlighted by the incorporation of marble into the traces of the removed walls, the discreet color differentiation of the walls and the preservation of the gypsum ceiling ornaments. The need for a new division of space is met with light-weight partitions, such as the curved receptionist/u2019s screen, with its hidden doors, or the wooden frame with translucent polycarbonate sheets, concealing a reduced kitchen. The extended archive of contracts is contained within characteristic custom cabinets that are dispersed throughout the private offices and reception area. Their wooden support frame allows the floor and the roof to continue behind them, uninterrupted, achieving a sense of lightness. The old marble counters and integral marble sink of the original kitchen and the lavatory/u2019s original water basin were carefully removed and reused in new positions.
These simple design decisions resist the usual perception of office spaces as neutral environments covered in gypsum board and aim to create a feeling of intimacy for both the numerous visitors during the day and the employees who spend an important part of everyday life in their workplace.
Creator: AREA












