Mindsparkle*

Copenhagen Interior Design cover image

Emil Dervish

December 18, 2018

Mindsparkle Mag

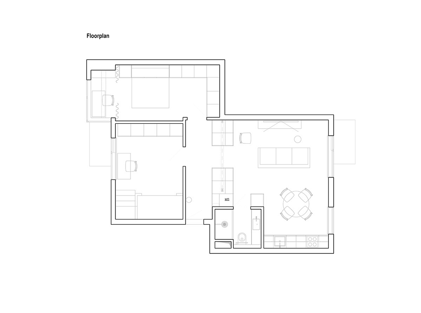
Copenhagen Interior Design

Beautiful interior design by Emil Dervish in Ukraine for an apartment in Copenhagen.

close

Submit

Submit your Design case study, Website or Job listing. Request an interview or brand promotion.

Plus

Become a Plus reader. Gain access to exclusive content, featuring unseen project insights and more.

Pro

Join the Pros. Gain maximum visibility on Mindsparkle & access to all premium features.